スタッフブログ
2025.10.27
松虫通2丁目 中古戸建 ※オーナーチェンジ物件
『大阪市阿倍野区松虫通2丁目』
価格:3,680万円
土地面積:60.59㎡(約18.32坪) ※セットバック部分約9.44㎡含む
接 道:北東側 幅員:約4.0m(私道) 接面:約7.4m
建ぺい率:70%
容 積 率:160%
用途地域:第二種中高層住居専用地域
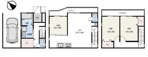
延床面積:88.29㎡ ※車庫部分約15.05㎡含む
建物構造:木造
間 取 り :3LDK
築 年 月 :平成28年(2016年)12月
現 況:賃貸中
現況賃料:月額14万円
表面利回:4.6%
取引態様:仲介
阪堺電気軌道上町線「東天下茶屋駅」徒歩約6分
大阪メトロ御堂筋線「昭和町駅」徒歩約14分
デイリーカナート晴明通店 徒歩約5分
緑豊かな聖天山公園まで徒歩約4分
自転車で約8分の距離に「あべのハルカス」や「あべのキューズモール」など天王寺の商業エリアがあり、日常の買い物から休日のショッピングまで生活の利便性に優れた立地です。


お気軽にお問合せ下さいませ。
※更新予定日:令和7年11月28日